Maar in het bestemmingsplan stond ook dat bestaande bomen waar mogelijk zouden worden gespaard en het weinige groen in het plan zou worden ‘gecompenseerd’ door ‘het groen in de omliggende tuinen en de bomen in de omgeving’. Inmiddels is gestart met de bouw en blijkt dat het bouwterrein al helemaal opgeschoond is.

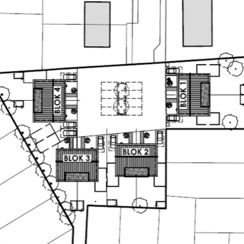
En nu wordt alsnog een kapvergunning aangevraagd voor de flankerende bomenlaan, bestaande uit elf stuks elzen van 11 tot 14 meter hoog - die de grens met de huizen aan de Bosweistraat markeert - en twee eiken waarvan een eik van 14 meter op de hoek. Echter, in het goedgekeurde bouwplan staan deze elzen ingetekend als zijnde bestaande, te handhaven bomen (zie bijgevoegde bouwtekening ). Op basis van onder andere deze tekening heeft de gemeenteraad goedkeuring verleend aan het bestemmingsplan.

Het betreft forse bomen; meer dan driekwart van de bomen heeft een stamdoorsnede van meer dan 40 cm en ze zijn duidelijk als een laan aangeplant. Nu wordt niet alleen getracht deze bomen te verwijderen, er is zelfs geen sprake van herplant.

Daarom trekt GroenLinks nu aan de bel: hoe kan het dat plannen in de tekeningen er altijd zo aardig uitzien en dat de harde werkelijkheid is dat al het groen moet wijken?

bomen hof van ambe

Aan het College van Burgemeester en Wethouders stelde GroenLinks schriftelijke vragen over o.a. de bescherming van waardevol groen in de wijk, niet alleen voor de nieuwe bewoners van de Hof van Ambe, maar ook voor de mensen die al jarenlang wonen in de Bosweistraat en de van Bronkhorststraat.

Ook willen we weten hoe het verwijderde groen gecompenseerd gaat worden, in gelijkwaardige aanplant ter plekke of elders. En als dat niet lukt, wat de financiële compensatie zal zijn in het Groenfonds (waaruit nieuwe bomen bekostigd kunnen worden).

Wat GroenLinks wil is dat bij alle bouwplannen harde afspraken worden gemaakt met de projectontwikkelaars over de bestaande en toekomstige groene invulling, en dat daar niet zo makkelijk meer van afgeweken kan worden.